KUCHEROV
STUDIO
Portfolio
About
Contacts
Portfolio
About
Contacts
en
uk
Get an Estimation
info@kucherovstudio.com
+38 067 459 6380
Building construction drawings | Kucherov Studio
← Back to Projects
Like
Share
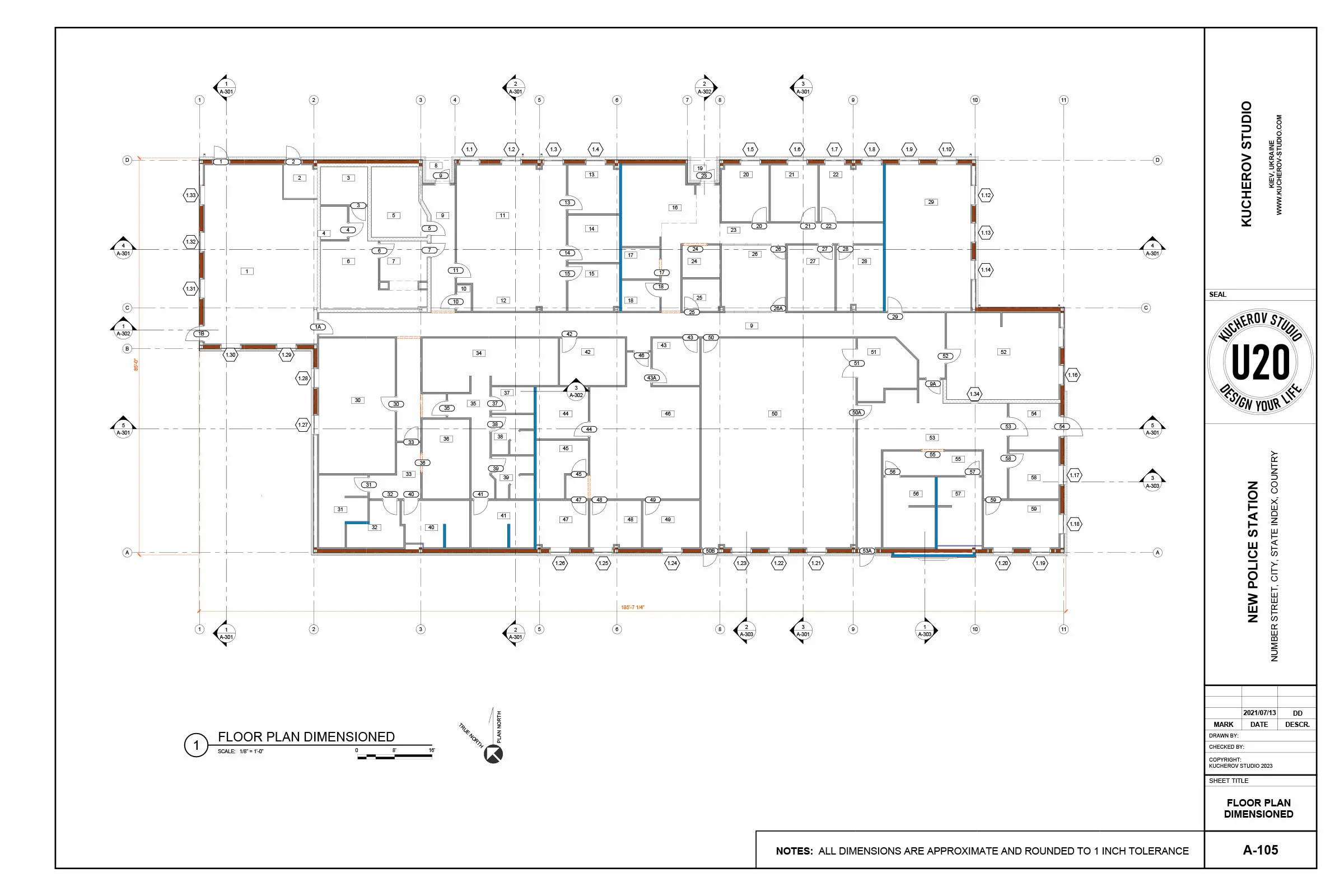
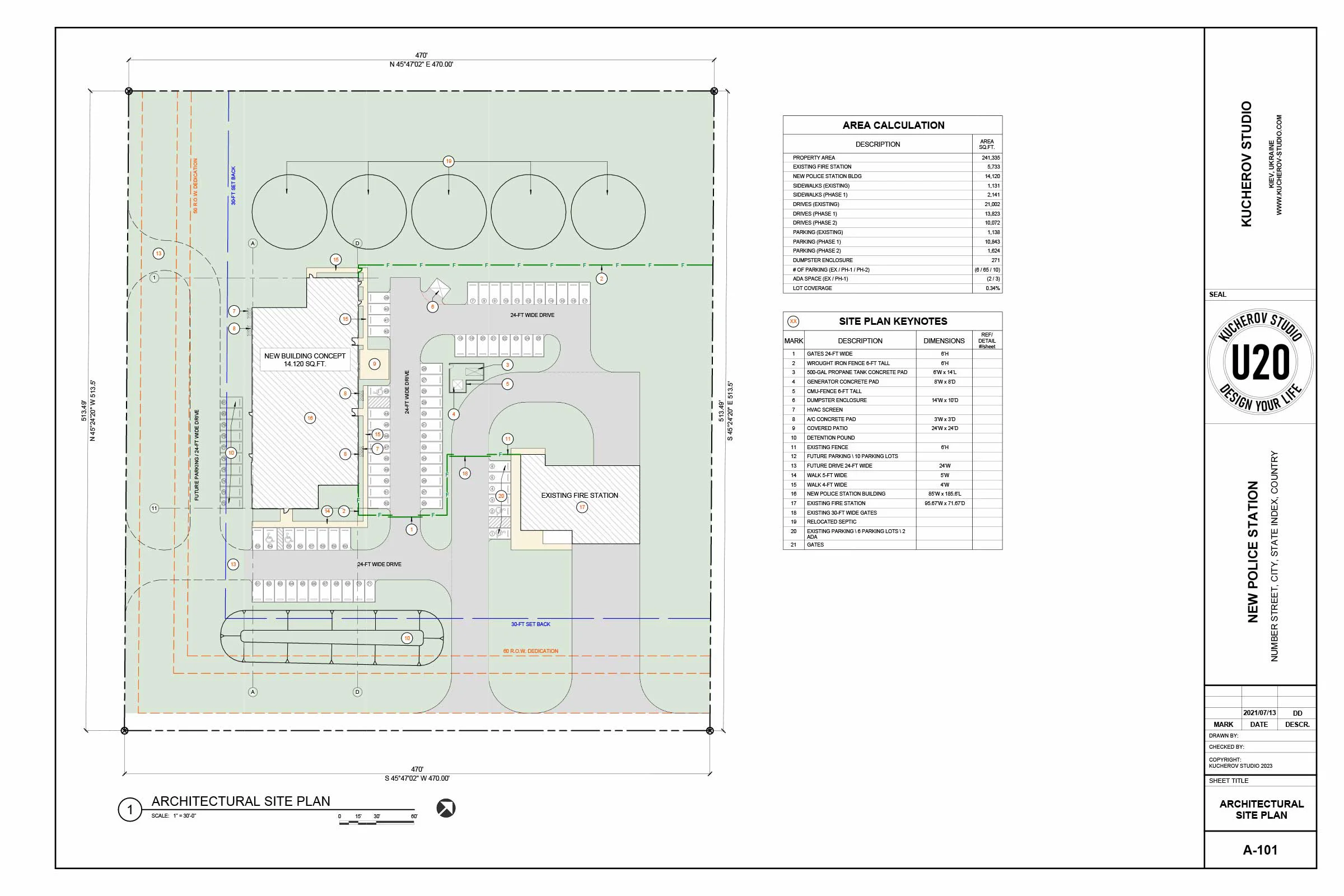
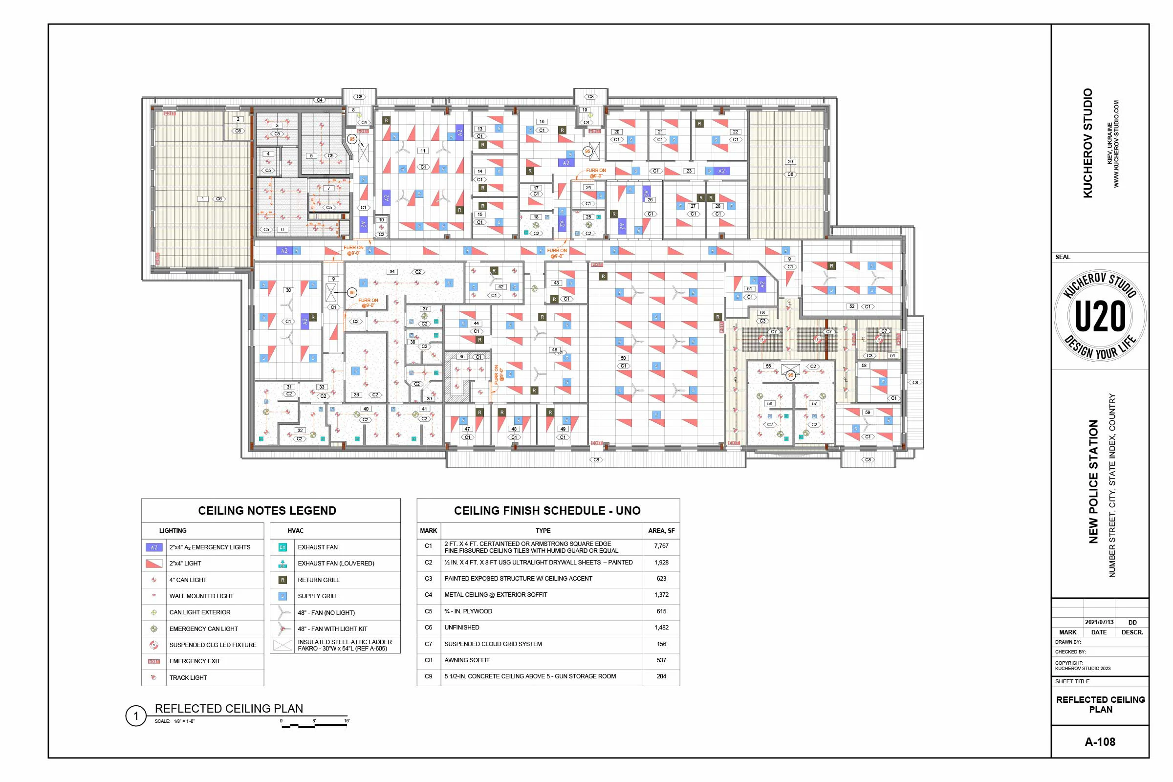
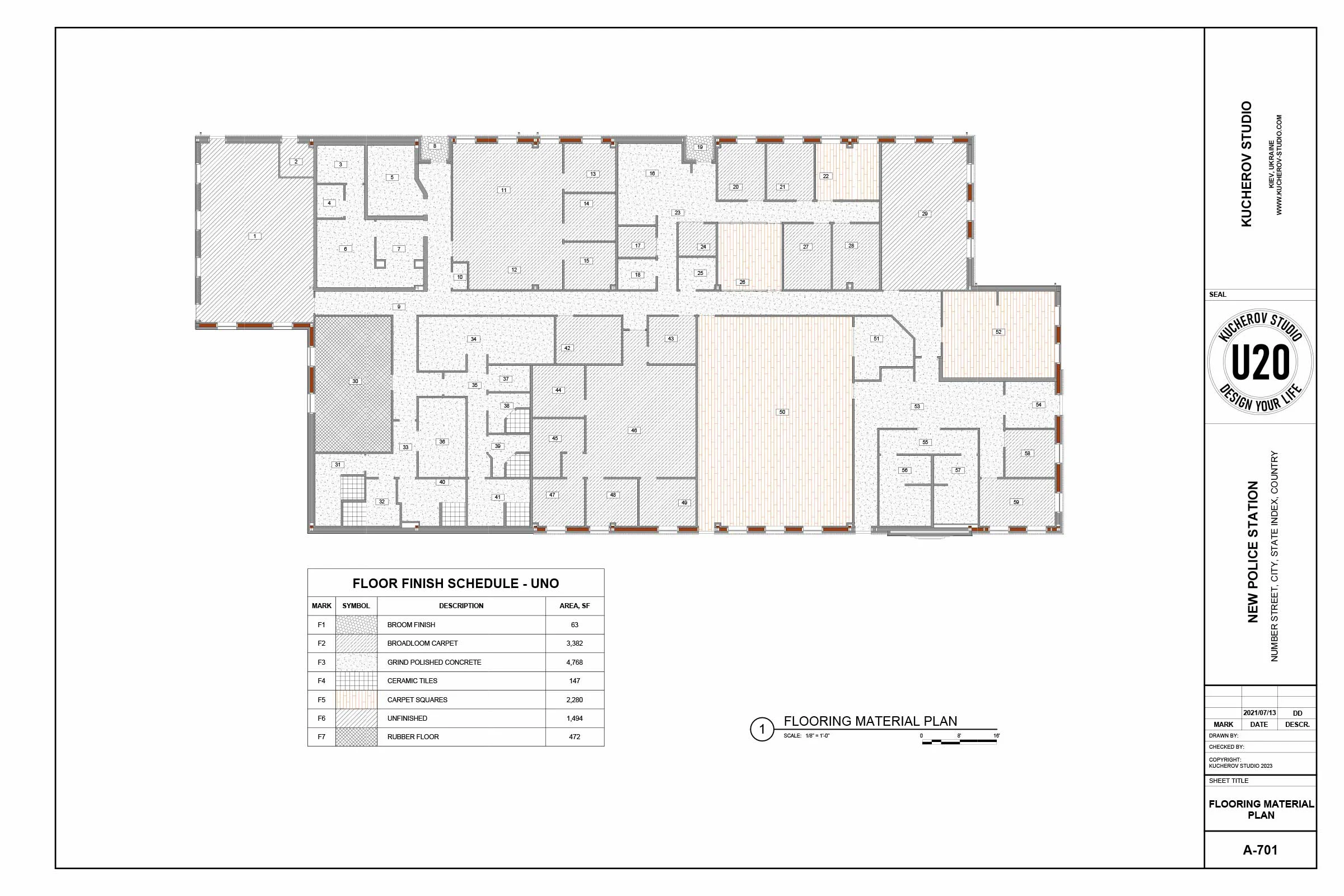
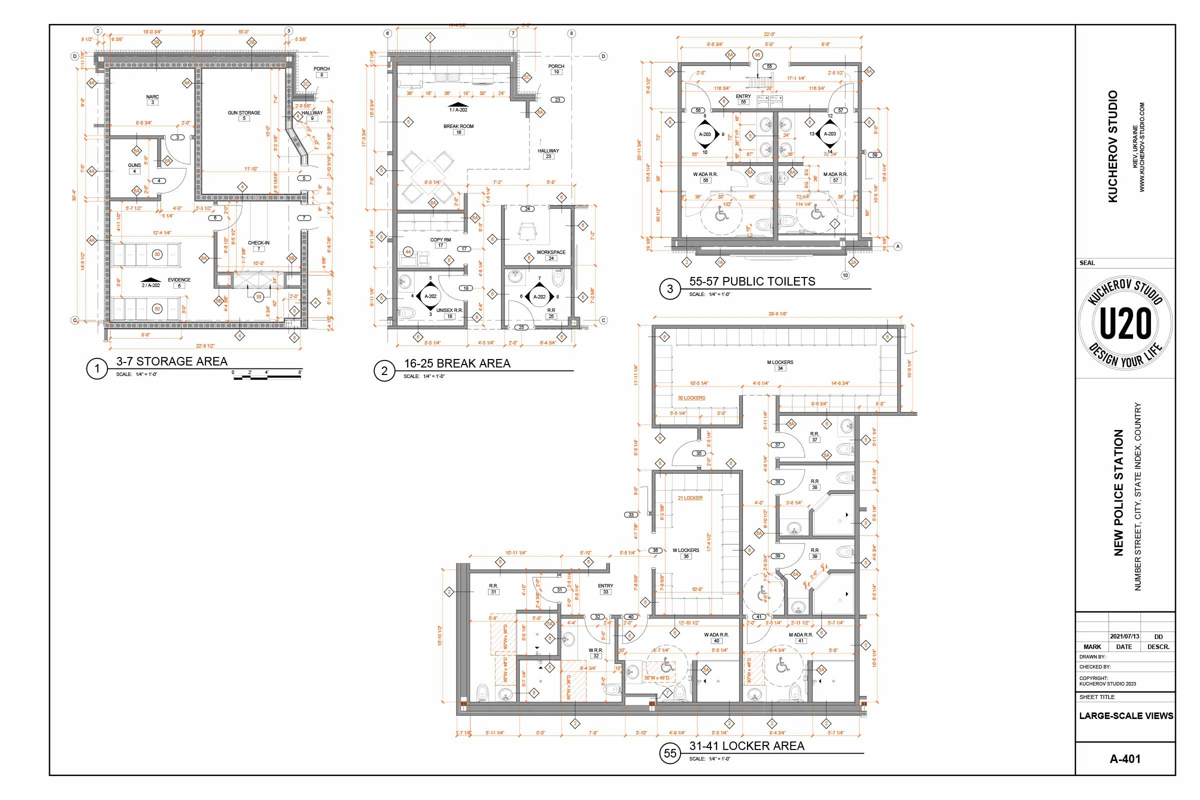
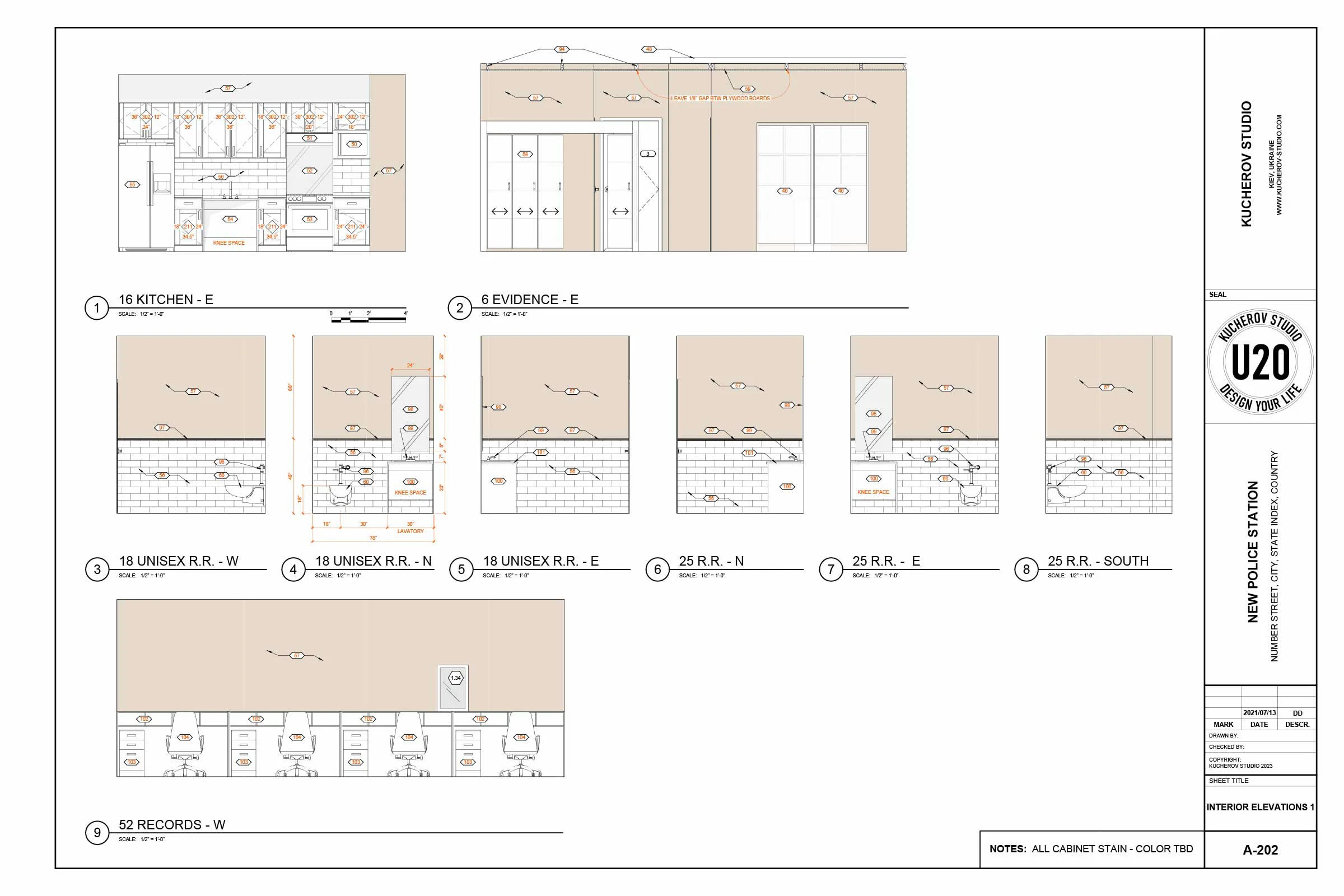
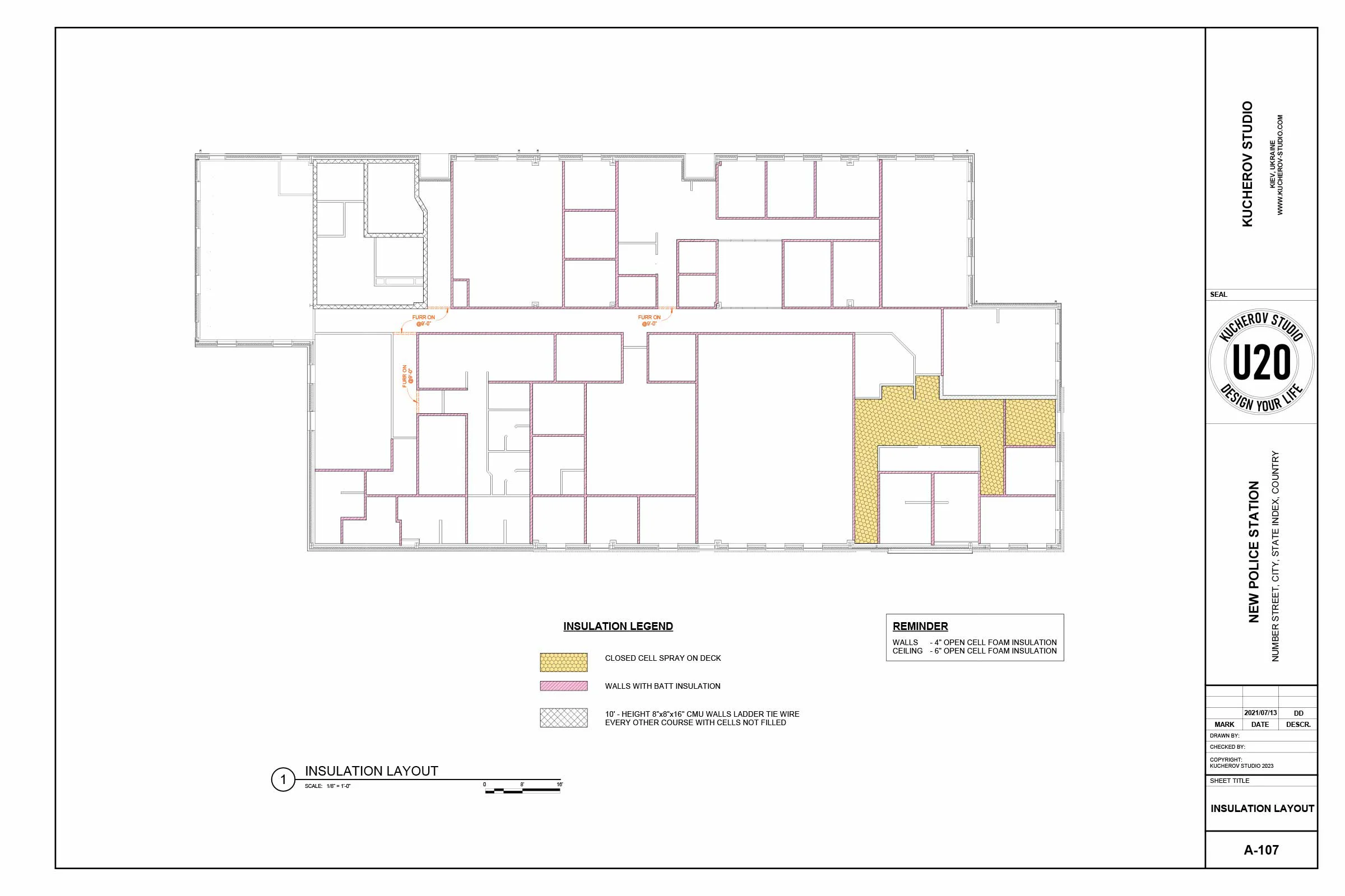
Building construction drawings
Construction Drawings
Seagoville, TX US
2021
14.120sq.ft. (1.318sqm)
Project description coming soon.
Credits
Architect
Gary Grossman
Architect assistant
Aleksander Kucherov
Software
Render
Corona
3D modeling
3ds Max
BIM-modeling
Archicad
Working drawings set
Archicad
Inquire This Project